918 E 50Th St Austin, TX 78751
Check Price & Availability
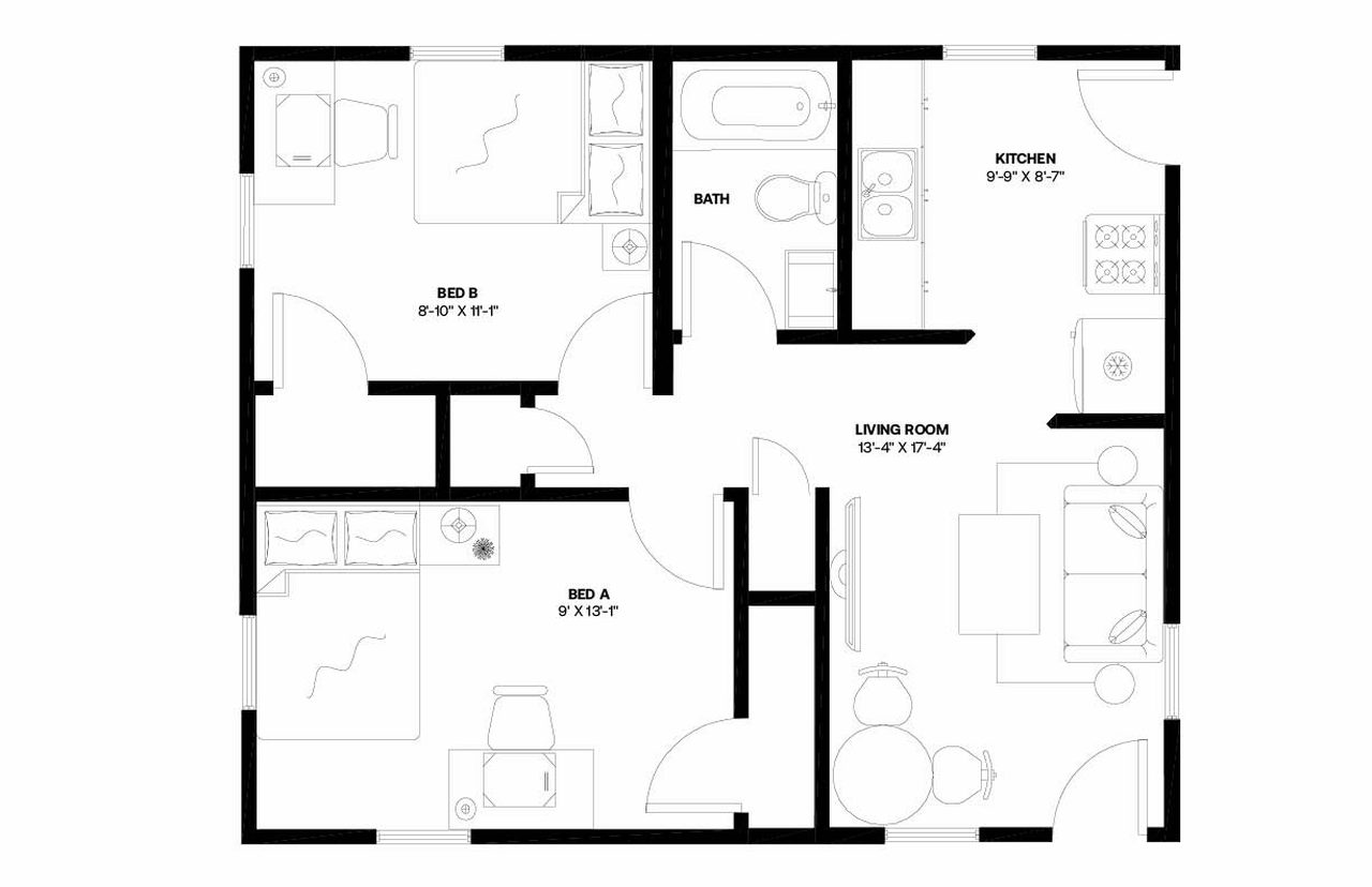
This is a Austin Apartment located at 918 E 50Th St. The property features a 2 BR rental unit available starting at $925. Contact us for a showing.'https://www.rentable.co/austin-tx/918-east-50th-street'

Learn more about this property by contacting the management team.
Search similar listings by floor plan, amenity, or property type.